Residencial Clodoaldo Sampaio

O condomínio Clodoaldo Sampaio foi implantado em 30 lotes no bairro Boa Vista, em Caruaru. Lega à cidade a manutenção de uma paisagem horizontalizada e de uma atmosfera de vizinhança – quando a região onde ele está situado já sofre os efeitos da verticalização. Visto como um grande quintal ou, mais precisamente, da junção de 38 deles. Numa espécie de arquitetura “introvertida”, onde o quintal encontra-se como um pátio central: integrado à rotina e visível por quem circula nos espaços da casa. No total dos seus 1.519 metros quadrados estão localizados: playground, salão de festas, salão de jogos, pista de cooper com 130 metros, redário e praça da boa idade. Conformando um grande espaço de convívio e de lazer para as unidades residenciais do condomínio, incentivando os vizinhos a se aproximarem e compartilhar os momentos da vida de maneira mais intensa e constante.

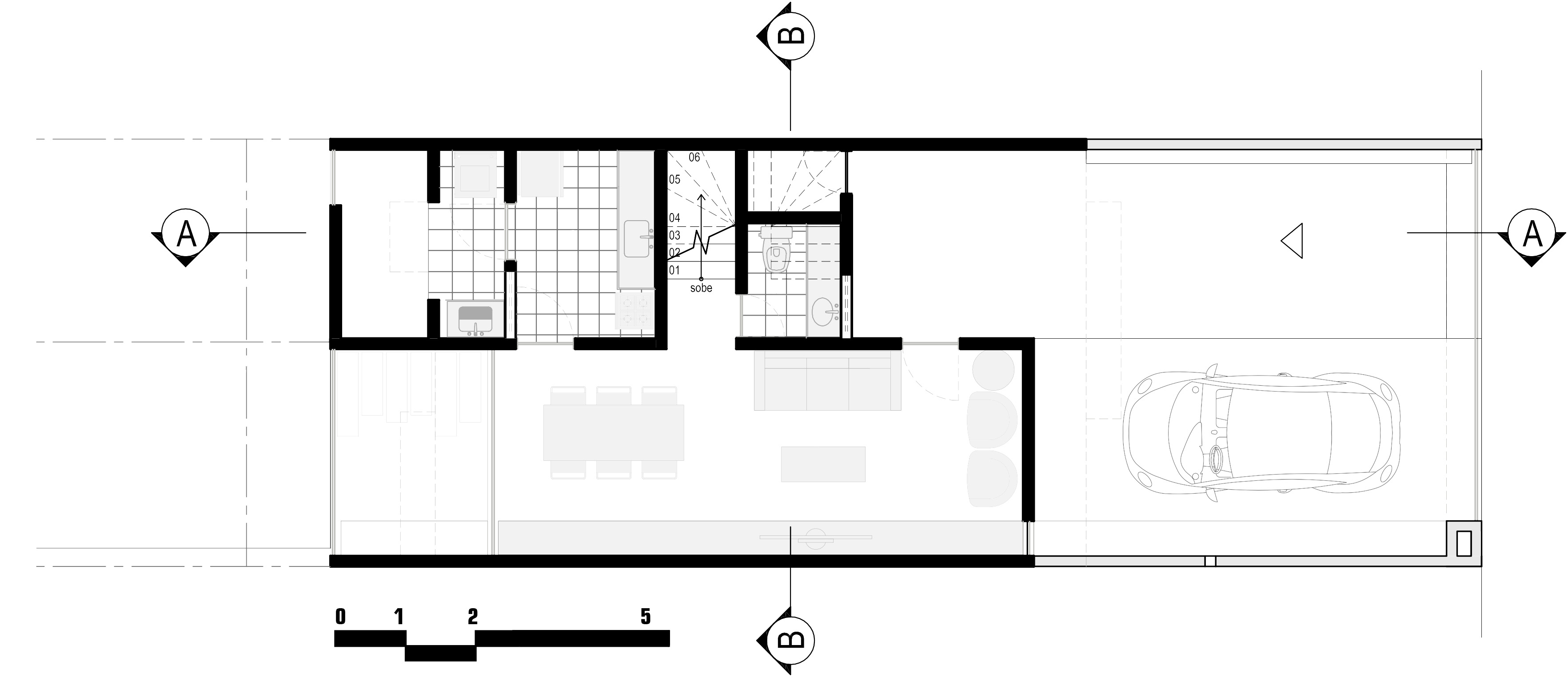
São 38 duplexes autônomos com área de 106.81 metros quadrados, onde cada um deles conta com sala de estar e jantar, cozinha, área de serviço, lavabo, 2 terraços, 2 quartos sociais, banheiro social, suíte com varanda e garagem para 2 carros. Cada unidade tem entrada independente para a rua, com portões vazados - carregando o conceito da vigilância mútua -, no intuito de preservar a permeabilidade visual e garantir a segurança da vizinhança, da casa, dos moradores e de quem caminha pela rua.

Os elementos construtivos foram pensados em sua eficiência: as fachadas e os telhados recebem revestimento em telha metálica, conformando um elemento único. Este material evitará a necessidade de pintura, além de facilitar a manutenção e prolongar a durabilidade. Na coberta o revestimento recebe um complemento de isolantes termo acústicos para a proteção contra o calor e o barulho da chuva.

Nome: Residencial Clodoaldo Sampaio

Endereço: Lote 15-A da quadra 50, Rua Josefa Antônia da Conceição e Rua Industrial Maurício Santino Bezerra, Loteamento Jardim Boa Vista, Bairro Boa Vista, Caruaru-PE.

Início da obra: 2013

Término da obra: 2016

Área do terreno: 5.400m²

Área total construída: 4.189,10m²

Projeto de Arquitetura: Bernardo Lopes, Mariana Caraciolo, Pablo Patriota.

Ambientação: Jirau Arquitetura

Execução da obra: Construtora Vilar Pontual

Projeto de Cálculo Estrutural: HCLI – Engenharia Estrutural Projetos e Construções

Projeto Instalações Elétricas, Telefônicas e Hidrossanitárias: HCLI – Engenharia Estrutural Projetos e Construções